
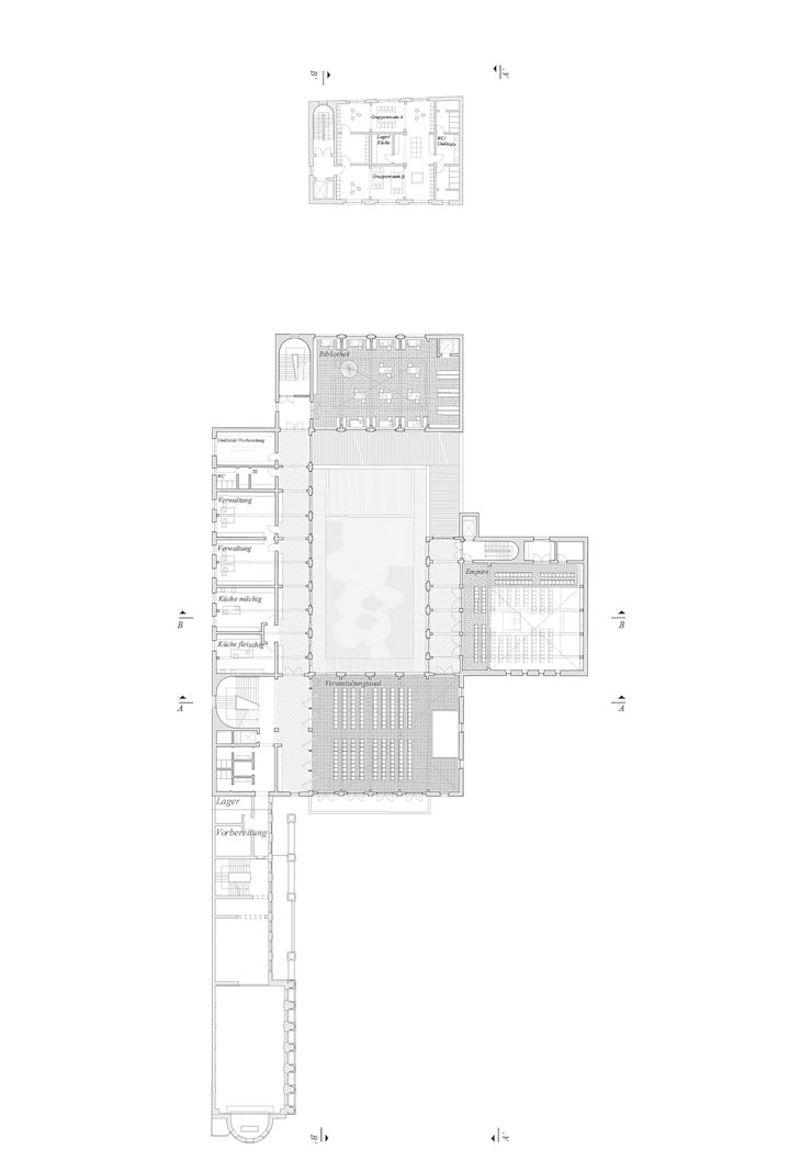
Ein Ensemble aus unterschiedlichen Baukörpern besetzt das längliche Grundstück. Eine Enfilade an Freiräumen – Vorplatz, Innenhof, Garten – bildet differenzierte Orte aus, die mit der Öffentlichkeit der Nutzungen korrespondieren. Jedem Baukörper ist ein Programm zugeordnet. Veranstaltungssaal und Gastronomie am südlichen Vorplatz bilden den Auftakt. Um den gartenartigen, für Veranstaltungen flexibel nutzbaren Innenhof, gruppieren sich die Baukörper von Synagoge, Bibliothek und Verwaltung. Dabei stellt das Rundbogenmotiv im Hof eine Reminiszenz an den zerstörten Vorgängerbau dar. Der Nutzgarten als geschütztester Freiraum wird vom Kinderhaus bespielt, das zugleich den Blockrand nach Norden schließt. Die an expressionistische Architekturen erinnernde Formensprache verleiht dem neuen Gemeindezentrum einen selbstbewussten und eigenständigen Ausdruck.











