Nadine Kreth
Technische Universität Darmstadt
Prof. Wolfgang Lorch
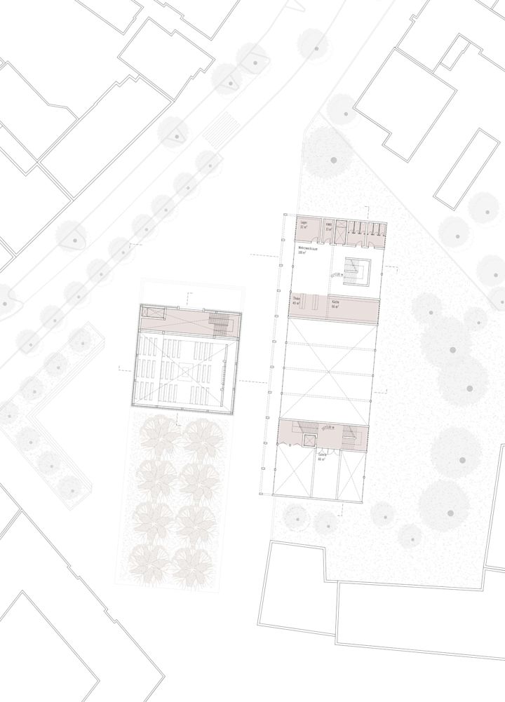
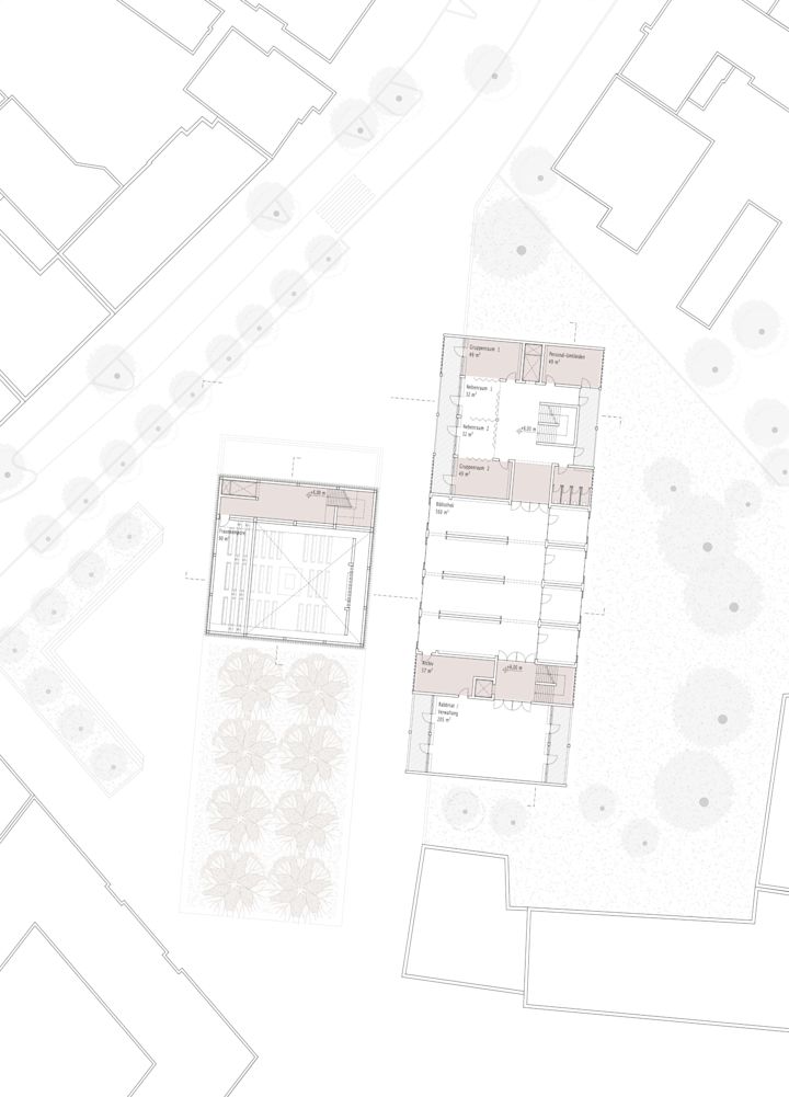
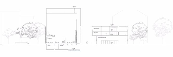
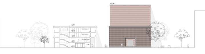
Bornplatz, Hamburg

Der Entwurf überzeugt durch eine souveräne städtebauliche Setzung auf einem schwierigen Grundstück, wobei der Konflikt zwischen Öffentlichkeit und Zurückgezogenheit lesbar thematisiert wird. Der Baukörper besitzt eine eigenständige Formensprache und wirkt in seiner strengen Vereinzelung monolithisch. Trotz der geschlossenen Form setzt der Entwurf auf Integration und bewusste Öffnung statt Distanz und Abgrenzung und schafft einen niederschwelligen Zugang in die Gebäude. Schwellen und Grenzen, wo sie existieren müssen, sind dezent gehalten. Der Entwurf ist im besten Sinne eine eigenständige Lösung. Die räumliche Qualität, Gestaltung und Lichtführung setzt sich bis in den Synagogeninnenraum fort.











